Büro- & Praxisräume im Schloss Rheda
Helle, ruhige und repräsentative Räume im historischen Schloss Rheda – ideal für Psychotherapie, Coaching und Beratung. Die Räume im Schloss Rheda verbinden historisches Ambiente mit moderner Klarheit. Große Fenster, warme Materialien und der Blick ins Grüne schaffen eine Atmosphäre, die ideal für therapeutische und beratende Tätigkeiten ist. Ob Praxis, Coachingraum oder kleines Büro – die Einheiten bieten den perfekten Rahmen für konzentriertes Arbeiten und empathische Gespräche.
Miete pro Monat
pro Monat Nebenkosten
Fläche
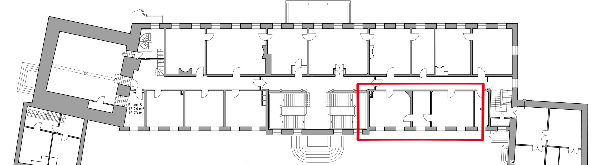
Grundriss des Barockflügels

Vorteile von Schloss Rheda

- Helle, ruhige Räume mit hoher Decke
- Repräsentatives Umfeld im historischen Schloss
- Blick ins Grüne – ideale, entspannende Atmosphäre
- Flexible Einheiten für Therapie, Beratung oder Büro
- Stilvolle Modernisierung
- Diskreter Zugang
- Parkmöglichkeiten vor Ort
- Gute Erreichbarkeit
Flexible Nutzungsmöglichkeiten

- Flexible Aufteilung
- Kleinere Einheiten und größere Raumkombinationen möglich
- Psychotherapie (PP, KJP, HP-Psych)
- Coaching und Supervision
- Beratung und Mediation
- Kreative Einzelarbeit
- Diskrete Bürotätigkeiten
Kontakt & Besichtigung

- Besichtigungstermin vereinbaren
Gerne zeigen wir Ihnen die verfügbaren Einheiten persönlich vor Ort. - Kontakt
Tel. 05242 / 94710
info@schloss-rheda.de - Immobilienscout24
68 m² mit Parkblick im Barocktrakt
3 Räume, 77 m² im Barocktrakt
Hauptkriterien
| Miete-/Kaufobjekt | Miete |
|---|---|
| Büro-/Praxisfläche | 68 m² |
| Verfügbar ab | sofort |
| Objektart | Büro |
| Anzahl Parkflächen | beliebig |
| Bodenbelag | Laminat |
| DV-Verkabelung vorhanden | Ja |
Kosten
| Miete pro Monat | 578 € |
|---|---|
| Nebenkosten | 120 € pro Monat |
| Kaution | 1.734,00 € |
| Provision für Mieter | Nein |
| Preis / Parkfläche | 30 € |
Bausubstanz & Energieausweis
| Baujahr | 1740 |
|---|---|
| Objektzustand | Vollständig renoviert |
| Denkmalschutzobjekt | Ja |
| Letzte Modernisierung / Sanierung | 2019 |
| Qualität der Ausstattung | Gehoben |
| Heizungsart | Öl-Heizung |
| Wesentlicher Energieträger | Öl |
| Energieausweis | laut Gesetz nicht erforderlich |
Arbeiten auf Schloss Rheda
Schloss Rheda bietet Praxis- und Büroräume für Therapie, Beratung und Büroarbeit. Helle Einheiten, diskreter Zugang und Parkmöglichkeiten unterstützen den Alltag; historische Substanz und behutsame Modernisierung prägen den Ort.

Therapeutische Arbeit braucht einen Rahmen, der Sicherheit und Vertrauen ermöglicht. Klare Abläufe und ein geordneter Tagesrhythmus geben dem Arbeiten Struktur.

Die Architektur von Schloss Rheda und die Umgebung unterstützen Konzentration und Gespräch. Termine, Vorbereitung und Nachbereitung lassen sich gut voneinander trennen.

Ein gemeinsamer Standort erleichtert Organisation und Abstimmung. Jede Praxis bleibt in ihrer Arbeitsweise eigenständig.
Karte
Steinweg 16 in 33378 Rheda-Wiedenbrück
























